Puslapis
Sport 1000
Sport 1000 Kiekvienam sporto paskirties statiniui reikalingi individualiai jam pritaikyti vandens surinkimo sprendimai. ACO Sport 1000 vandens surinkimo sistema sukurta taip, jog gali būti pritaikyta įvairių tipų stadionams ir yra skirta...
Puslapis
Profiline
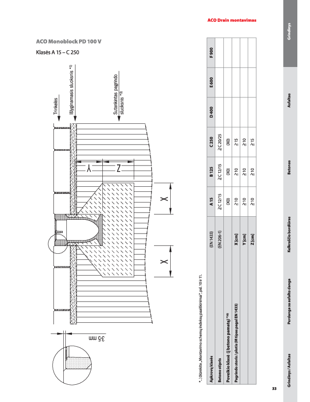
Profiline ACO Profiline - tai profesionalus vandens nuo fasadų surinkimo sprendimas. Labai svarbu užtikrinti, jog drėgmė neprasiskverbs į pastatą iš eksploatuojamų stogų, balkonų ir pro tokias jautrias terasų vietas kaip įėjimai bei fasadai. ACO...
Puslapis
Spin įlajos iš kaliojo ketaus
Spin įlajos iš kaliojo ketaus Spin įlajos, pagamintos iš kaliojo ketaus, efektyviai surenka kritulių vandenį nuo sutapdintų bei žaliųjų stogų, terasų, daugiaaukščių automobilių aikštelių, ir nuveda jį į kanalizaciją vidine vamzdžių sistema....
Puslapis
Spin įlajos iš nerūdijančiojo plieno
Spin įlajos iš nerūdijančiojo plieno Nerūdijančiojo plieno Spin įlajos efektyviai surenka kritulių vandenį nuo sutapdintų stogų ir nuveda jį į kanalizaciją vidine vamzdžių sistema. Gaminio privalumai: Modulinė sistema, kurią galima pritaikyti...
Puslapis
Įlajos žaliesiems stogams
Įlajos žaliesiems stogams Įlajos žaliesiems stogams yra pagamintos iš polimerbetonio, ir yra paprastai pritaikomos tiek intensyviai, tiek ekstensyviai apželdinamiems stogams. Gaminio privalumai: Reguliuojamas aukštis, priklausomai nuo humuso...
Puslapis
Stogų ir terasų drenažas
Stogų ir terasų drenažas Spin įlajos iš kaliojo ketaus Skirtos jungti prie kaliojo ketaus vamzdžių pagal EN 877 Flanšas hidroizoliacijai privesti Priešgaisrinė sauga konstrukcijoms nuo 150 mm Elektrinio šildymo galimybė Spin įlajos iš...

